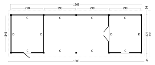
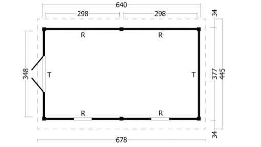
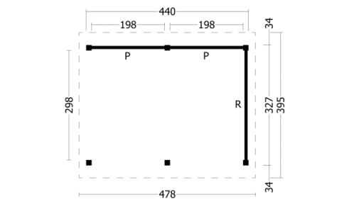
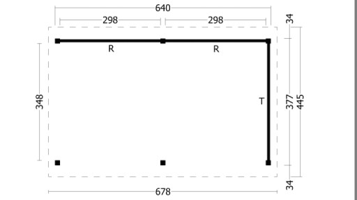
Zadeldak

Getoond 1 van de 15 totaal 28 Producten
Wat zeggen onze klanten?
Wij vinden het belangrijk om transparant om te gaan met onze reviews, daarom vragen we iedere klant naar de ervaring met tuinhoutdeal.com. Hierbij filteren weniet en verwijderen we ook nooit negatieve reviews. We geven jou als klant namelijk graag altijd een zo objectief mogelijk beeld over de producten, diensten en services die wij leveren.
B. van den Berg
Snelle serivice, goede prijs. Aanrader